Watch Touch Hear Smell
Have a taste of life itself ! May the Force be with me!
山野咖啡宁波店比预想中来的要早一些。以BC(Bushcraft)文化为核心的山野咖啡杭州本店(杭州山野咖啡)于2020年9月开业后,迅速在咖啡界和户外界火出了圈。彼时诞生了一句有趣的话 — 我不在山野,就在去山野的路上。

观堂设计总监张健 如是说
第一次应邀去到宁波带梦胡同,勘察了为山野预留的商铺,一线沿街,展开面非常大,拥有独立的前院、后院和露台。院子里肆意生长着的三棵大树,是柏树和香樟,茂密的枝叶从一楼延伸至二楼,环境非常完美。

我们的山野咖啡是一个关于梦想的故事,寄托了自身对户外的热爱与向往,也希望给宁波这座城市带来“坐在山野喝咖啡”的美好体验——微风下,阳光里,目之所及,心之所向,身之所往,处处皆山野。在这个特殊的疫情年代,也希望每个人都可以放下包袱,亲近自然,回归初心。

设计之初的动线与功能规划
宁波山野的原始建筑是一片混凝土框架结构,算上户外共有740平米,面积是杭州山野的4、5倍。如果仅单一经营咖啡,面积着实过大。如何合理的利用各个空间,确保舒适、调性和品位的同时,将之与合适的产品及经营模式相匹配,从而产生有效的商业回报,在设计之初山野与GTD花费了相当多的精力进行探讨。
∇ 原始建筑

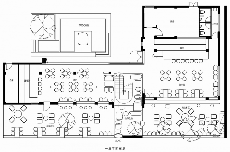
建筑整体沿街,立面开间很大,为了能使顾客进店的效率最大化,设计中将店铺入口布置于建筑中间,并由此重新规划了登上二楼的楼梯。在楼梯成为整体立面中心的同时,又将空间自然划分为左、右、上、下四个区域,从而根据不同的运营内容对不同区域开展针对性设计。

一脉相承的“山野之路”
“山野之路”一直是山野咖啡馆的灵魂,从抵达之时起,你便踏上了一条与众不同的小径。每一块石板,每一棵苗木,每一片青苔,都来自于精挑细选,引领着你向前探索。



推开那把标志性的斧头门把手,山野之路继续向内延伸,尽头是一大块雕琢着“山野咖啡馆”字样的原石。

尽可能的“打开”
宁波山野室内面积320平米,户外区域多达420平米,这在城市商铺中实在难能可贵。得力于这个得天独厚的空间条件,设计过程中尽可能为“打开”预留了行性。南与北的立面全采用玻璃移门和移窗做法,但凡天气合适、便将门窗全部推开,将户外空间引入室内,与自然融为一体,尽情享受自由呼吸。





将日咖夜酒进行到底
宁波店的场地比较大,产品定位为咖啡饮品、小酒馆和简餐,这里便有了厨房和双吧台。其中主吧台出品咖啡与饮品,紧邻厨房,位于店铺右手边,客人沿山野之路入店后抬头便见,方便抵达与点单需求,也方便运营团队的操作与跑动。次吧台主要出品酒类饮品,位于店铺的左方。各个区域的客人可以自由落座互相串场。白天的客人,可以点杯咖啡来份下午茶;晚间的客人,可以来杯鸡尾酒精酿威士忌,于闲聊间微醺。





将山野生活方式带入城市
城市是一座岛屿,每个人都会面临荒野求生,山野咖啡希望能为城市里打拼的人们提供一个休憩之所。
在这里,你看到的每一块石板,酒吧区的每一棵树桩,墙面上的每一根树枝,角落里镶嵌的每一块原石,微景观里的每一捧青苔,吧台上的每一块老木板每一盏吊灯,墙面上出现的每一幅画……全都倾注了百分百的心血。

欣慰的是,正如各方所愿,宁波山野正在为这座城市带来山野户外的美好生活方式。去山野喝一杯聊两句,正在一点点融入平常生活的瞬间。

这里不只是一家店。


∇ 1F平面图

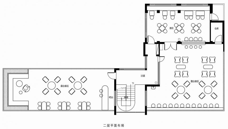
∇ 2F平面图

项目信息
项目名称:山野咖啡 · 宁波店
项目地址:宁波鄞州区嵩江中路1002号DEMOHOOD青年创意社区
项目面积:740平米
竣工日期:2022年9月
空间设计:杭州观堂室内设计有限公司
店铺道具:杭州久维装饰工程有限公司
灯光照明:杭州见合灯光设计事务所
窗帘布艺:宁波致品居 · 柔然软装
植物布置:去野 · 二旦植物工作室
室内家具:失物招领(LOST & FOUND)
主要材料:手工砖、天然风化石、老木头、无机水磨石
空间摄影:黑水、陈昊、汤汤、王飞