Watch Touch Hear Smell
Have a taste of life itself ! May the Force be with me!
傍海,是三亚酒店的标配
碧海蓝天、椰风徐徐、阳光沙滩……这些词汇组成了很多人心底的“欲望三亚”、“喧嚣三亚”,设计师谢柯“并不喜欢”的城市。“三亚的体验只有‘大酒店’和‘城乡结合部’。”
然而,遇上阿那亚·三亚,避开海风的咸湿和嚷闹的人群,在山丛包裹的社区中,借一座隐藏在地下的小酒店Hotel Y & Kitchen,谢柯达成了与三亚的和解。



Hotel Y & Kitchen
山海内外
Between the mountains and the sea
“海,是外向的欢乐之道;山,是内向的安静之道。山与海,交织融合出阿那亚的生活方式,形成人生的闭环。”马寅选择一座座山拥海抱的城市,阿那亚·三亚携手谢柯,提供生活,而不仅仅是“生活方式”。

01
在海的另一面,邂逅山
Hotel Y & Kitchen坐落于阿那亚三亚的山社区,某种意义上,它是“反三亚”的。以伴山而居取代傍海而宿,以幽光取代日光浴,以安静取代嘈杂,以回归本真的生命美学取代喧嚣的人生秀场。

入口
事实上,这场与海背行的设计实践,只是呈现出三亚常被遗忘的精彩,即山,这也是海岛的另一重本质。


“乌托邦或理想主义”
认知阿那亚,谢柯有感于其内容与运营思维,“很想在阿那亚有我们的作品,能跟人、社区发生关系,变成其乌托邦或理想主义的一部分。”而运营与设计的结合、对生活美的认同,正是马寅与谢柯达成合作、建立共识的关键。

庭院
“我们希望小酒店以简约为核心,但又与极简主义区别开来。极简主义指向极致纯粹与克制 ,而简约的本质则是温暖与人文情感。”这种与“有品质的简朴、有节制的丰盛”不谋而合的观念成为Hotel Y & Kitchen的风格基础。

建筑仅有黑色的“边线”勾勒着米白色的主体,甚至连灯具都隐匿形态。细腻的材质与手工艺品、艺术品点缀其间,则让为时光赋形,触手也温。
02
还社区一个花园,沉在地下

地上花园
事实上,Hotel Y & Kitchen在选址上并不占优势。“若房子盖在地上,它的窗户和对面别墅的窗户就能握上手了”马寅回忆道。


场地周边紧邻住宅,潜在的强对视让居民与酒店房客都无隐私可言,这成为设计师最棘手的问题。

下沉庭院
“那天,我们在三亚开完会出门。会议室外强烈的阳光让我瞬间睁不开眼睛……”现场的第一感觉告诉谢柯。“把酒店沉在底下,还社区居民一个花园,同时解决刺眼阳光的问题……”这样,才能呈现一种安静的氛围。

野生花园,下沉秘境
建筑方案最终敲定仅把小部分接待和开放餐厅放在地上,其余藏在地下,让屋顶成为让邻里愉悦的野生花园。建筑以低矮谦和的姿态,现代风格外形令其脱颖于环境,而米白色调则融于当地。

共区
谢柯希望打造一座“邻里友好型建筑”,他希望建筑可以包容时间,包容一草一木生长变化的可能。

屋顶的“野生花园”在三亚的阳光和雨水下疯长,它面向整个社区开放,人们可以兴味盎然地徜徉在草木之间,身所盘桓,目所绸缪,尽享自然的风华沐露。


自然充满着时光的形象
自然栖留,而时光飞速滑行
这一切都来自完美
于是,高空的光芒
照耀人类,如同树旁花朵锦绣
——荷尔德林《远景》

开敞区
值得一提的是,酒店是谢柯完成非改造类建筑设计的首次尝试,是其现阶段设计价值观最全面、完整的呈现。而gaagaa餐厅、夕上酒店等实体店铺运营经验,则让设计对功能的梳理与布局更具参考性。



开敞区
03
塑造光的轮廓
谢柯总是强调设计的“无为”。
在Hotel Y & Kitchen,顶、墙、地浑然一体,空间似乎无始无终,自然而生,意境天成。

大堂
来自壹集的家具饰品大多以原生的木材、竹编作为雕饰的底色,或以色块和纹理来装点空间。


大堂
接待厅像一个“家”的客厅,可直面整个花园,也可俯瞰地下。亚麻的沙发配上有岁月感的木椅、非洲裔艺术家的画作,色调柔和统一,简洁而静谧。



大堂
谢柯总是“知道早上的阳光从哪儿来,然后下午直到傍晚又去了哪儿”,始终在意“光通过时间而在空间上的投射”。


酒吧咖啡区
在三亚,他希望适当规避过于炫目的骄阳,让人“能够看到阳光,但不至于曝晒”。


酒吧咖啡区
而光与影的戏剧变化,亦成为空间最为重要的装饰语言。

酒吧咖啡区
酒店的餐厅及客房区域,所有的开窗都经过审慎的考究,光在空间中舞蹈。餐厅有着独立的入口,经由一处灰空间可达。

泳池
泳池便临着一处灰空间,后者作为客人用餐及休闲的配套功能。青绿的泳池配上暖黄灰的石壁和建筑外墙,像一块青翠的璧玉。

餐厅
面积不大的餐厅让人在不同形态“座”与“舒适的方式”上,寻到酒酣耳热的欢愉


餐厅
客房区经由很宽的走廊相连,在一定节点释放出大面积的花园,极具韵律——这种遮阳避雨的灰空间是为人们亲近自然提供了另一种可能方式。


客房1
另一侧,客房区大大小小的天井释放出光的入口,每个房间都有双面天井、双面采光,形成空气对流。


客房3
客房朝北,南向的阳光将墙面打亮,置身空间内,人们不被强光所扰,却仍能感知光的存在。

客房5
存在于室内半明半暗的影子里,存在于植物蓬勃生长的孔隙间。



客房8
窗外,白千层树干挺拔,斑驳的灰色树冠将光线有效过滤,白色的花朵浮泛在空间的蔚蓝、时间的墨黑中……


客房9
谢柯希望这座小建筑能慢慢成长,被时光染得更旧一点,静候植物跟建筑慢慢长到一起,慢慢变得更温润一点。变成社区里一位亲切的邻居、日常的朋友……



客房6

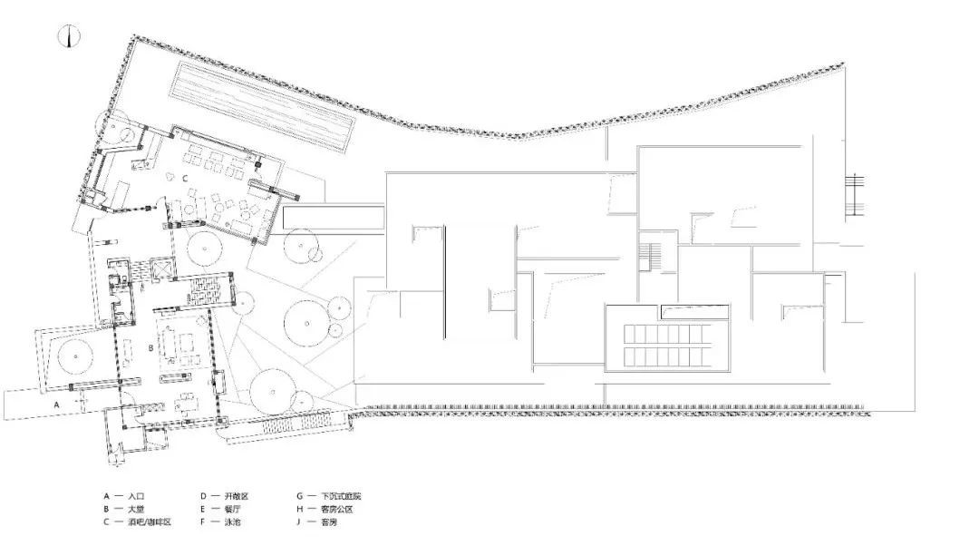
1F平面图

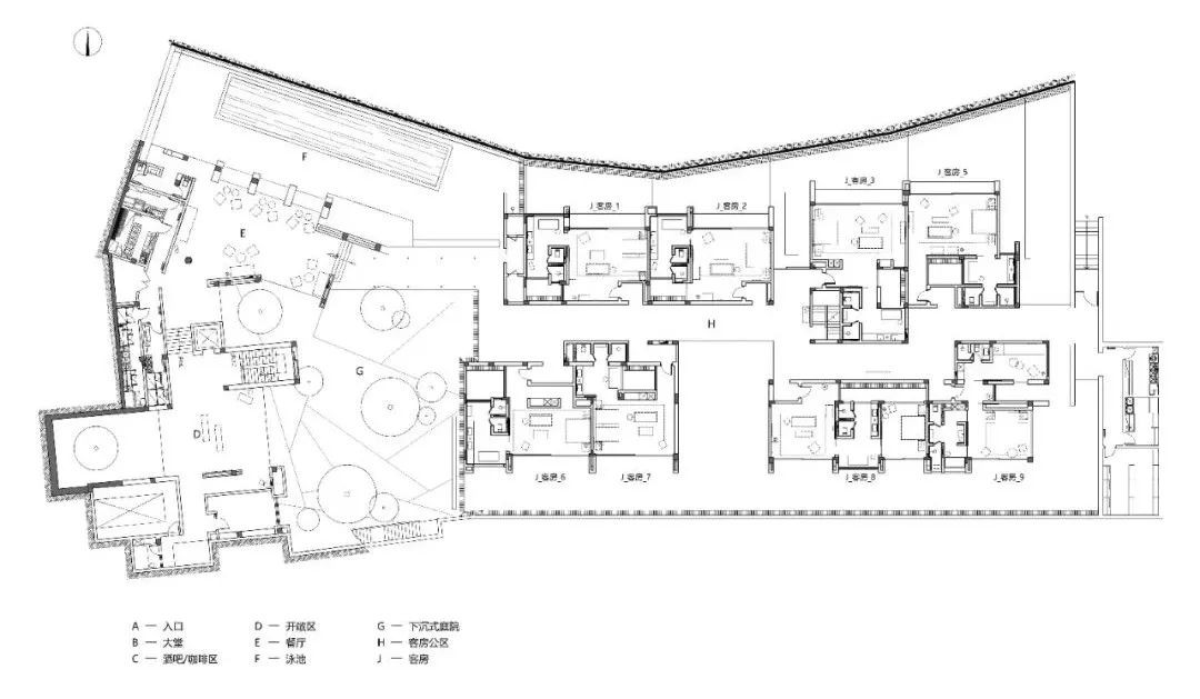
-1F平面图
项目名称:Hotel Y & Kitchen
项目地点:阿那亚·三亚
建筑、室内设计:尚壹扬设计
主案设计师:谢柯 支鸿鑫 杨凯 郑亚佳
设计师:陈祖玲 鄂兰秀 李茜 张琳 聂筱凡
景观设计:尚壹扬设计 纬图设计 九里雨山
项目摄影:JLAP 雷坛坛